Sold for $951,000


  • 4
  • 2
  • 2

Is this the ideal balance of lifestyle?

Located merely moments from the town centre yet feeling like you are a million miles away from it all this property offers a unique lifestyle that feels like the best of both worlds.

Modern, yet with timeless appeal. In a country town yet within minutes to the conveniences of the suburbs. Seclusion, whilst still being a part of the community. This home offers all of that and more.

Nested in an olive grove all of its own and secreted behind the solar panels this private and secluded residence offers size to surprise and is perfectly practical for the growing modern family.

Offering an opportunity to apply your own finishing touches there is ample scope to further add value over time to truly make it a home of your own.

Melding traditional 19th century architectural elements the north facing bay windows are a delight and inside the theme continues with timbre textured floors and subway tiles reminiscent of yesteryear yet with a modern twist that immediately makes the home feel contemporary.

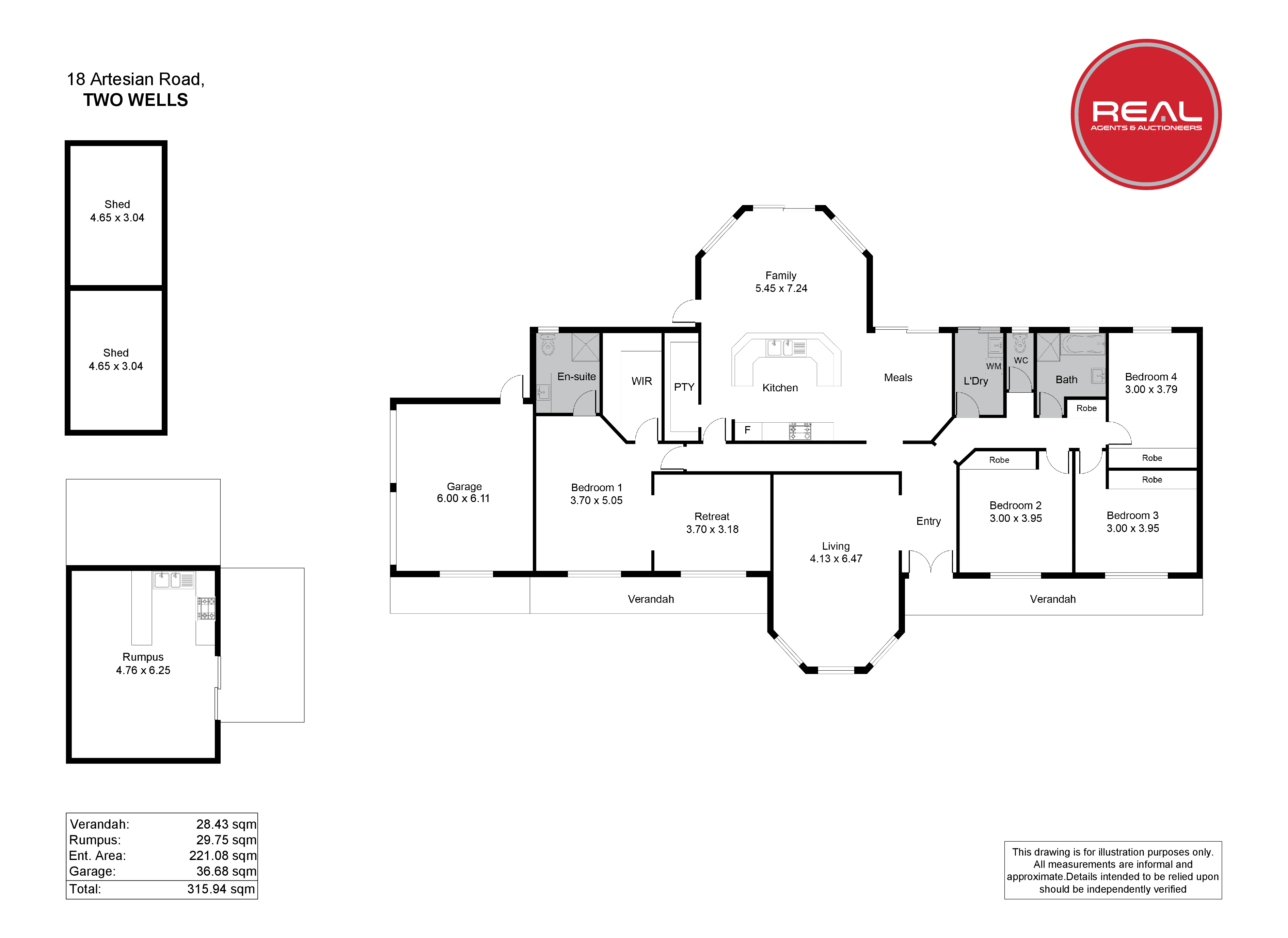
Generously proportioned this residence boasts four bedrooms and two large living areas so ensuring there is space for the whole family.

The master suite is replete with ensuite and walk in robes lending a little luxury to every day.

At the epicentre of the home lies the kitchen featuring rich stone bench tops, subway tile splash backs and stainless appliances to create a space that encourages the creation of culinary delights. With walk in pantry and expansive island bench over looking the casual meals and living space and looking over toward the Olive Grove.

This is a space that will bring the family together whether its mundane mid week meals of catering for life's big celebrations.

Regardless of the time of year you will be ensconced in the comfort of your own home with reverse cycle air conditioning offering immediately reprieve from the worst of the conditions whilst the crackling embers of the combustion heater will radiate warmth on those crisp Adelaide Plains winter evenings.

Parking aplenty is available around the home and under cover with shedding and double garage providing secure vehicular storage.

The extensive solar panel installation makes the most of the unobstructed northern elevation offering respite from the ever increasing energy prices helping ease the cost of living pressures so offering peace of mind for years to come.

The rumpus provides options having been hewn from the shed, as many are, and is now repurposed and continues to serve this family well. The flexibility and utility of this extra space means whether you are seeking more storage, a place to work from when at home or a teen retreat this space has you covered.

Long established and predating the house by many decades the olive grove was once part of a more significant land holding and serves as a hobby for some, an enterprise for others and interesting to everyone.

The effervescent Adelaide Plains is in a state of transformation and thousands of families have moved to the estates to the north and east of the township whilst the west of the town retains its rural living roots and so preserving the essence of the area.

With excellent local public and private schools, easy access to the expressway and the city beyond this Two Wells has never offered more conveniences so offering and intriguing balance of lifestyle.

Ready to move into and enjoy from day but with an opportunity to apply your finishing touches over time this home is great for families seeking to escape the suburbs without sacrificing the conveniences of all the already know and love.

A truly unique offering and a wonderful balance of lifestyle this home may be the best of both worlds.


**DISCLAIMER*** Although the Agent has endeavoured to ensure the accuracy of the information contained within the marketing material we remind prospective purchasers to carry out their own due diligence and to not rely upon the information in this description. This description does not warrant that all features, improvements or appliances are in working order or have necessary approvals and the Agent advises all parties interested in the home to undertake their own investigations prior to purchase.

**PRICING**
For the most part of the last 28 years I have been releasing properties to the market without a price. I do so just for the first open inspection and then we set a price with the Vendor/s in consideration of the feedback derived from the first open. I understand that may frustrate some buyers but the frustration will be rewarded with a price range set that is an accurate reflection of market value balanced by the Vendor/s expectation. It is also frustrating for a vendor to be on the market for weeks longer than necessary because they have over priced their property. Or if they choose to price the home in excess of feedback levels they can do so knowingly and factor that into their timeframe. I will release a price by way of SMS to all buyers who attend the first open and upload a price as soon as practicably thereafter. Thank you and should you have any further questions about my rationale in marketing properties successful in this manner for over 1800 sales please feel free to call me directly anytime.


CT: 5408/669
Land Size: 8094m²
Year Built: 2023
Zone: Rural Living
Council: Adelaide Plains

RLA 23236

Contact The Agent

Dave Stockbridge

Director
0413 089 910
Email Agent
View My Properties

Steve Spurling

Sales Associate
0421 571 682
Email Agent
View My Properties
Land Size 8094 Square Mtr approx.
Building Size 315 sqm

Brochure

Share

Talk with an agent: (08) 7073 6888

Connect with us

REAL Estate Agents Group Adelaide

Address

REAL Estate Agents Group Adelaide

Adelaide, SA 5000

REAL Estate Agents Group Adelaide 2025 | Privacy | Marketing by Real Estate Australia and ReNet Real Estate Software